







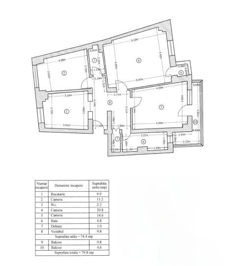
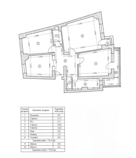
Vă prezentăm spre vânzare un apartament cu 3 camere, luminos și bine compartimentat, situat la etajul 9 din 10 al unui imobil solid, construit în 1987. Proprietatea se remarcă prin compartimentarea complet decomandată, oferind intimitate și funcționalitate optimă.
Cu o suprafață utilă de 75 mp, apartamentul dispune de două grupuri sanitare și două balcoane, spații care adaugă un plus de confort și versatilitate. Lumina naturală este prezentă pe tot parcursul zilei, iar poziționarea la etaj superior asigură liniște și o perspectivă deschisă asupra zonei.
Localizarea este un real avantaj: imobilul se află la intersecția Bd. Basarabia cu Bd. Chișinău, la doar 5 minute de stația de metrou Costin Georgian, cu acces rapid către principalele puncte de interes ale orașului. În imediata vecinătate se regăsesc școli, centre comerciale, magazine și multiple opțiuni de transport public.
Această proprietate reprezintă o alegere excelentă atât pentru rezidență, cât și pentru investiție, având un potențial foarte bun de închiriere într-o zonă constant solicitată.