


Casa individuala adiacent Splaiul Unirii, renovata
Va oferim spre vanzare o casa individuala situata adiacent de Splaiul Unirii, intr-o zona de case. Casa este amplasata pe un teren cu o suprafata de 415mp , avand o deschidere de 17,48ml.
Pe teren exista 2 constructii:
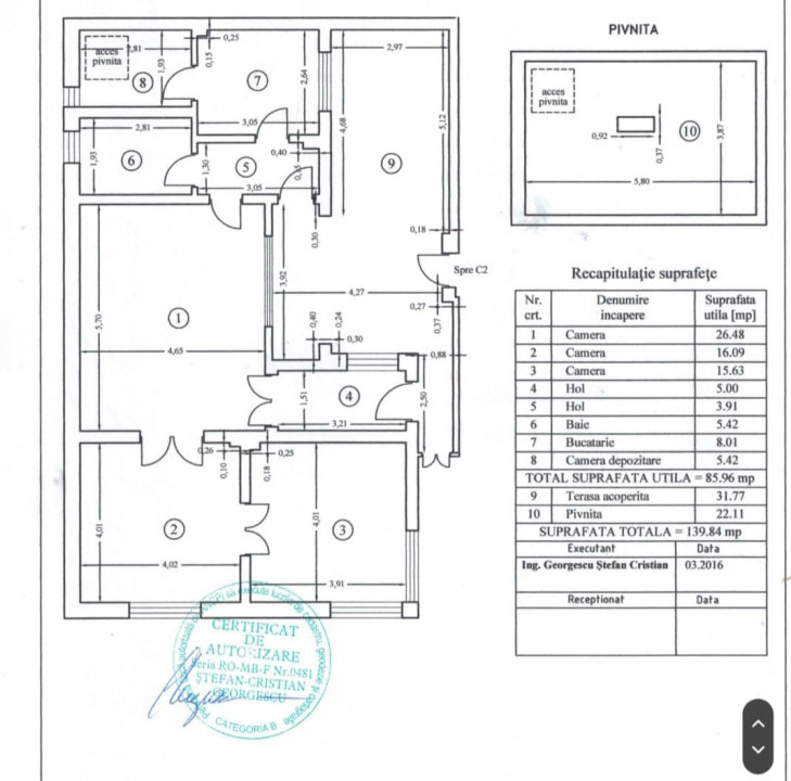
-prima constructie este o casa impartita in: 3 camere, hol, baie, bucatarie, camera depozitare , terasa si o pivnita(22 mp), insumand o suprafata totala de 140mp
-cea de-a doua constructie este impartita in garaj , grup sanitar si o camera pentru depozitare, insumand o suprafata de 42mp.
Casa este renovata in 2024, izolata exterior, incalzire in pardoseala, aer conditionat, iar curtea este amenajata cu gazon(sistem de irigatie cu automatizare).
In acest moment casa este folosita pentru activitate comerciala.
Pret vanzare 420.000 euro+TVA negocialbil!
Pentru mai multe detalii, va stam la dispozitie!!