




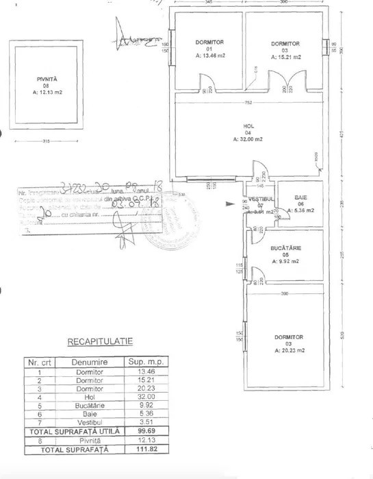
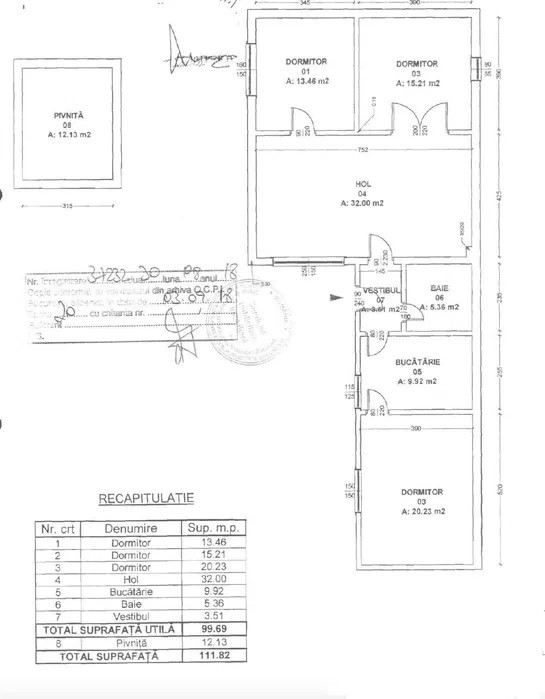
Va propunem spre vanzare o casa de 4 camere în zona Cotroceni. Casa are 3 dormitoare, living,pivnita.
Această proprietate oferă un mediu confortabil și practic pentru viața de zi cu zi. Situat într-o zonă accesibilă și convenabilă, acest apartament este perfect pentru cei care doresc să fie în proximitatea unor facilități esențiale precum metrou, magazine, transport public și alte puncte de interes.
Imobilul se află într-o curte comună cu suprafață totală de 390 mp, din care 195 mp sunt în proprietatea acestui imobil.Necesită renovare totală, cu posibilitatea extinderii spațiului locativ. Se află într-o zonă liniștită, la 7 minute de mers pe jos de parc și metrou Eroilor, în apropiere se află grădiniță, școală și centru comercial.
Această locuință oferă un nivel ridicat de confort termic și economii la facturile de utilități.
Pretul de vanzare este 270.000 euro, oferind o oportunitate accesibilă pentru cei care caută o locuință sau o investiție în această zonă.
Contactati Claudia Ungurasu pentru a programa o vizionare si a descoperi toate beneficiile si detaliile speciale ale acestei proprietati.
Pentru serviciile de intermediere imobiliara, Agentia percepe un comision standard din pretul de vanzare!!
Vizionarile se fac doar în baza semnării în prealabil a Fisei de Vizionare!!